Noor Durrani & Associates

Tekla Structural Steel Detailing Services

Noor Durrani & Associates

At Noor Durrani & Associates, we deliver complete steel structure solutions — from structural design and connection engineering to detailed Tekla Structures modeling and fabrication shop drawings. Our Tekla models are developed through seamless coordination between our in-house structural engineers and experienced detailers. With a deep understanding of load paths, lateral stability systems, and connection behavior, our team ensures that every member, bolt, weld, and plate represented in the model is not only dimensionally precise but also structurally reliable and fabrication-ready. We design efficient steel framing systems, engineer safe and economical connections, and translate approved structural designs into fully coordinated Tekla models and comprehensive shop drawing packages. This integrated workflow ensures a smooth transition from design office to fabrication workshop and ultimately to site erection — minimizing errors, reducing RFIs, and improving overall project execution.

Our Steel Engineering & Detailing Expertise

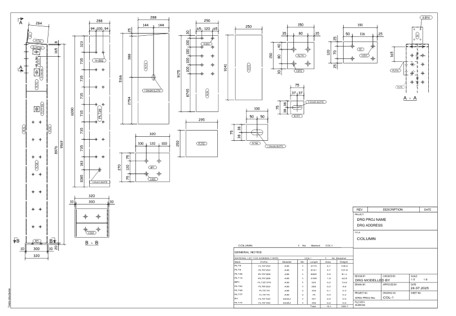
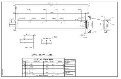
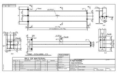
At Noor Durrani & Associates, We develop intelligent, fabrication-ready 3D models using Tekla Structures for industrial, commercial, and high-rise steel projects. Our models include fully detailed members, connections, welds, bolts, plates, stiffeners, and constructible geometry—ensuring direct usability for shop drawing extraction. Every model is structured for efficient assembly, erection sequencing, and seamless BIM coordination, minimizing RFIs and fabrication errors. Our deliverables include:
• General Arrangement (GA) drawings
• Assembly drawings
• Single-part drawings
• Anchor bolt plans
• Bolt and weld schedules
• Bill of Materials (BOM)
• CNC/NC files (DSTV)
• Erection drawings
All documentation is generated directly from the model, ensuring dimensional consistency and minimizing fabrication errors.

Recent Projects & Portfolio

Tekla Structures 3-D Models